情報更新日:2025年11月06日/広告有効期限:なし
表示閲覧回数(過去30日間):77
お急ぎの方はお電話からお気軽にどうぞ!
042-644-6680 営業時間 / 9:30〜18:30 定休日 / 日曜・水曜・祝日
>物件詳細情報
| 基本情報 | |
|---|---|
| 物件番号 | 10007807545 |
| 店舗形態 | 居抜店舗, 路面店舗, 店舗 |
| オススメ業種 | 医療関係, 美容関係, 塾・学校・教育関係, 事務所 |
| 物件名 | 小泉ビル(八幡町) |
| 物件の状態 | 空き |
| 引越し時期 | 相談 |
| 契約形態と期間 |
定期契約期間:10年間再契約:可 |
| 所在地・交通 | |
|---|---|
| 所在地 | 東京都八王子市八幡町-14-14 |
| 交 通1 | JR中央線八王子駅 徒歩16分 |
| 交 通2 | バス八日町4丁目 徒歩2分 |
| 賃料 | |
|---|---|
| 賃 料 | 644,000円(税込) |
| 敷 金 |
5ヶ月 |
| 保証金償却 | 20% |
| 礼 金 | 1ヶ月 |
| その他 | |
|---|---|
| 備考 | 再契約相談可 ライフライン各費用:要相談 |
| 建物 | |
|---|---|
| 建物構造 | 鉄筋コンクリート造 |
| 建物階建て |
地上3階 |
| 施工年月 | 1977(昭和52)年 06月 |
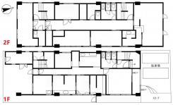
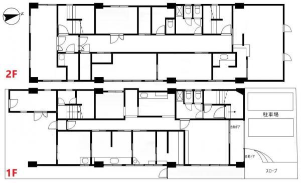
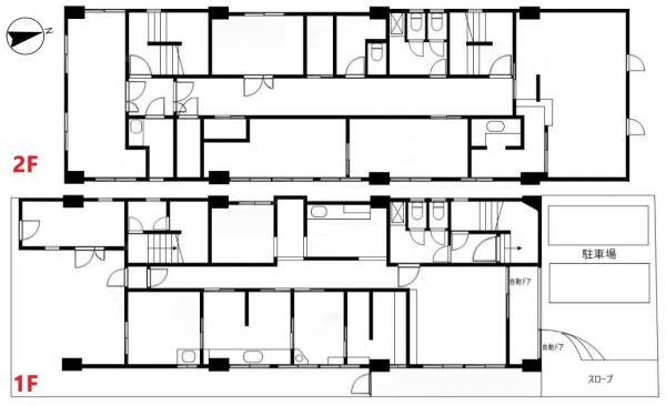
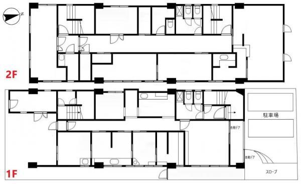
| 募集物件の階数 | 地上 1-2階 |
| 契約面積 | 297.80m2(90.08坪) |
| 用途地域 | 商業地域 |
| 設備 | |
|---|---|
| 水道 | 公営 |
| 下水道 | 公共下水 |
| ガス | 都市ガス |
| エアコン | 有り/個別 |
| トイレ | 有/専用 |
| 照明設備 | 有 |
| 駐車場 | |
|---|---|
| 状 況 | 空有無料 |
| 空き台数 | 2台 |
| 取引情報 | |
|---|---|
| 取引態様 | 媒介 |
| 客付 | 可 |
この物件をチェックした人はこんな物件も見ています
- 建物内にドラッグストア、内科が入っており、お客様駐車場もあります。業種は医療関係・学習塾・美容院限定での募集となります。

東京都多摩市落合6-15-4
103.15m2(31.20坪)
231,000円(税込)
- 八王子駅4分、人通りの絶えない駅前銀座通り沿いで飲食店に最適!

東京都八王子市東町-12-6
263.83m2(79.81坪)
965,701円(税込)
- 八王子駅徒歩4分、5階居酒屋居抜き。

東京都八王子市東町-12-6
254.15m2(76.88坪)
845,680円(税込)
- 2駅利用可の2階店舗事務所。元は歯科医院ですが、現況スケルトン。外階段で直接2階に上がれます。

東京都八王子市横山町-24-7
54m2(16.34坪)
198,000円(税込)
- 2026年3月完成予定の新築物件。みさき通り沿い、駅近で10階建マンションの2階1区画。業種ご相談いただけますが、上階が住居のため、煙や臭いの出る重飲食は不可。※1階ワンフロア・202号室も募集中!

東京都八王子市三崎町-10-1(地番)
36.55m2(11.06坪)
143,000円(税込)
今日チェックした物件
お急ぎの方はお電話からお気軽にどうぞ!
042-644-6680 営業時間 / 9:30〜18:30 定休日 / 日曜・水曜・祝日


042-644-6680



















042-644-6680