情報更新日:2025年09月30日/広告有効期限:なし
表示閲覧回数(過去30日間):34
お急ぎの方はお電話からお気軽にどうぞ!
042-644-6680 営業時間 / 9:30〜18:30 定休日 / 日曜・水曜・祝日
>物件詳細情報
| 基本情報 | |
|---|---|
| 物件番号 | 10007807158 |
| 店舗形態 | 事務所, ロードサイド, 店舗 |
| オススメ業種 | 医療関係, 美容関係, 塾・学校・教育関係, 事務所 |
| 物件名 | グレースビル店舗 |
| 物件の状態 | 空き |
| 引越し時期 | 即 |
| 契約形態と期間 |
普通契約期間:3年間更新料:1ヶ月 |
| 所在地・交通 | |
|---|---|
| 所在地 | 東京都八王子市椚田町-513-13 |
| 交 通1 | 京王高尾線めじろ台駅 徒歩12分 |
| 交 通2 | 京王高尾線山田駅 徒歩14分 |
| 賃料 | |
|---|---|
| 賃 料 | 302,500円(税込) |
| 敷 金 |
3ヶ月 |
| 精算方法 | 実費 |
| 礼 金 | 1ヶ月 |
| その他 | |
|---|---|
| 備考 | 詳細お問い合わせ=アパマンショップめじろ台店(電話 042-665-2100)へ。 |
| 建物 | |
|---|---|
| 建物構造 | 鉄筋コンクリート造 |
| 建物階建て |
地上3階 |
| 施工年月 | 2007(平成19)年 03月 |
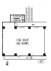
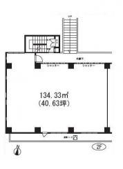
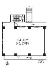
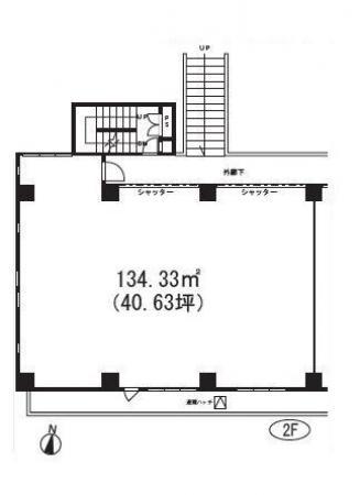
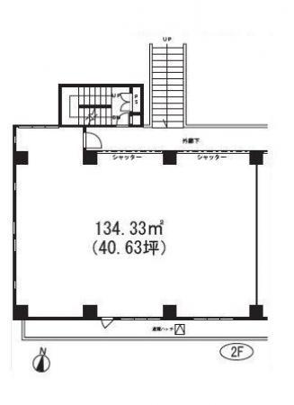
| 募集物件の階数 | 地上 2階 2-2号室 |
| 契約面積 | 134.33m2(40.63坪) |
| 設備 | |
|---|---|
| 水道 | 公営 |
| 下水道 | 公共下水 |
| ガス | LPG |
| エレベータ | 無 |
| エアコン | 無 |
| 内装業者指定 | 無 |
| 駐車場 | |
|---|---|
| 状 況 | 空有 |
| 駐車料金 | 11,000円(税込) |
| 空き台数 | 1台 |
| 取引情報 | |
|---|---|
| 取引態様 | 代理 |
| 客付 | 可 |
この物件をチェックした人はこんな物件も見ています
- 八王子駅4分、人通りの絶えない駅前銀座通り沿いで飲食店に最適!

東京都八王子市東町-12-6
263.83m2(79.81坪)
965,701円(税込)
- 建物内にドラッグストア、内科が入っており、お客様駐車場もあります。業種は医療関係・学習塾・美容院限定での募集となります。

東京都多摩市落合6-15-4
103.15m2(31.20坪)
231,000円(税込)
- 2026年3月完成予定の新築物件。みさき通り沿い、駅近で10階建マンションの2階1区画。業種ご相談いただけますが、上階が住居のため、煙や臭いの出る重飲食は不可。※1階ワンフロア・201号室も募集中!

東京都八王子市三崎町-10-1(地番)
58.68m2(17.75坪)
220,000円(税込)
- 2026年3月完成予定の新築物件。みさき通り沿い、駅近で10階建マンションの2階1区画。業種ご相談いただけますが、上階が住居のため、煙や臭いの出る重飲食は不可。※1階ワンフロア・202号室も募集中!

東京都八王子市三崎町-10-1(地番)
36.55m2(11.06坪)
143,000円(税込)
- 2025年6月完成の4階建新築マンションの1階部分、全3区画募集。医療関係・美容関係・学習塾・事務所等に最適です!

東京都八王子市明神町3-23-5
60.93m2(18.43坪)
302,500円(税込)
今日チェックした物件
お急ぎの方はお電話からお気軽にどうぞ!
042-644-6680 営業時間 / 9:30〜18:30 定休日 / 日曜・水曜・祝日


042-644-6680



















042-644-6680