情報更新日:2025年12月12日/広告有効期限:なし
表示閲覧回数(過去30日間):35
お急ぎの方はお電話からお気軽にどうぞ!
042-644-6680 営業時間 / 9:30〜18:30 定休日 / 日曜・水曜・祝日
>物件詳細情報
| 基本情報 | |
|---|---|
| 物件番号 | 10007807623 |
| 店舗形態 | 店舗(飲食店可), 店舗, 路面店舗 |
| オススメ業種 | 軽飲食, 重飲食 |
| 物件名 | 八木町居抜き店舗 |
| 物件の状態 | 空き |
| 引越し時期 | 即 |
| 契約形態と期間 |
普通契約期間:3年間更新料:1ヶ月 |
| 所在地・交通 | |
|---|---|
| 所在地 | 東京都八王子市八木町-3-16 |
| 交 通1 | JR中央線西八王子駅 徒歩12分 |
| 交 通2 | バス追分 停 徒歩1分 |
| 賃料 | |
|---|---|
| 賃 料 | 275,000円(税込) |
| 保証金 | 6ヶ月 |
| 礼 金 | 1ヶ月 |
| その他 | |
|---|---|
| 備考 | 造作譲渡無償。1階=86.28㎡/2階=85.75㎡/3階=85.75㎡ |
| 建物 | |
|---|---|
| 建物構造 | 鉄骨造 |
| 建物階建て |
地上4階 |
| 施工年月 | 1974(昭和49)年 11月 |
| 募集物件の階数 | 地上 1-3階 |
| 契約面積 | 257.78m2(77.98坪) |
| 用途地域 | 商業地域 |
| 設備 | |
|---|---|
| 水道 | 公営 |
| 下水道 | 公共下水 |
| ガス | 都市ガス |
| トイレ | 有/専用 |
| キッチン | 有/専用 |
| 照明設備 | 有 |
| 駐車場 | |
|---|---|
| 状 況 | 無し |
| 取引情報 | |
|---|---|
| 取引態様 | 媒介 |
| 客付 | 可 |
この物件をチェックした人はこんな物件も見ています
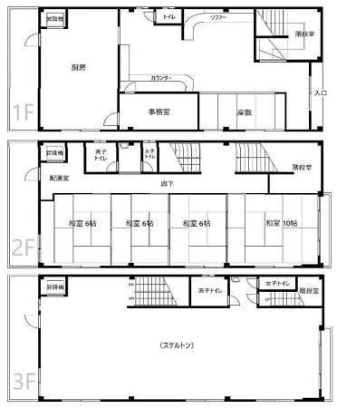
- 甲州街道(国道20号線)沿いの1~3階一括貸店舗。長く愛された定食屋さんの居抜き店舗です。1階イス席、2階座敷、3階はスケルトンに近い状態です。ぜひご内見ください!

東京都八王子市八木町-3-16
257.78m2(77.98坪)
275,000円(税込)
- 八王子駅徒歩5分、3階のテナントです。内装は事務所仕様にリニューアル済み。トイレ等の水回りも新規交換済み。事務所以外にも美容系のテナントに!

東京都八王子市中町-4-10
91.37m2(27.64坪)
349,800円(税込)
- 事務所・店舗などにオススメです。駅のすぐ隣で便利です! ぜひ一度ご内見下さい。

東京都八王子市散田町3-1-1
98.10m2(29.68坪)
247,500円(税込)
- 京王八王子駅徒歩2分、JR八王子駅徒歩6分、2駅利用可のSOHO事務所(レンタルオフィス)。既存3階に加え、2階は2024年8月新設!

東京都八王子市明神町2-25-3
8.45m2(2.56坪)
47,300円(税込)
- 京王八王子駅徒歩2分、JR八王子駅徒歩6分、2駅利用可のSOHO事務所(レンタルオフィス)。既存3階に加え、2階は2024年8月新設!

東京都八王子市明神町2-25-3
7.27m2(2.20坪)
39,600円(税込)
今日チェックした物件
お急ぎの方はお電話からお気軽にどうぞ!
042-644-6680 営業時間 / 9:30〜18:30 定休日 / 日曜・水曜・祝日


042-644-6680



















042-644-6680