情報更新日:2026年05月08日/広告有効期限:なし
表示閲覧回数(過去30日間):0
お急ぎの方はお電話からお気軽にどうぞ!
042-644-6680 営業時間 / 9:30〜18:30 定休日 / 日曜・水曜・祝日
>物件詳細情報
| 基本情報 | |
|---|---|
| 物件番号 | 10007807591 |
| 店舗形態 | 事務所, 店舗 |
| オススメ業種 | 事務所, 医療関係, 美容関係 |
| 物件名 | やまとビル |
| 物件の状態 | 空き |
| 引越し時期 | 相談 |
| 契約形態と期間 |
普通契約期間:3年間更新料:1ヶ月 |
| 所在地・交通 | |
|---|---|
| 所在地 | 東京都八王子市明神町4-7-3 |
| 交 通1 | JR中央線八王子駅 徒歩4分 |
| 交 通2 | 京王線京王八王子駅 徒歩1分 |
| 賃料 | |
|---|---|
| 賃 料 | 495,000円(税込) |
| 共益費・管理費 | 110,000円(税込) |
| その他月額費用 1 | 看板使用料 11,000円(税込) |
| 保証金 | 4ヶ月 |
| 礼 金 | 1ヶ月 |
| その他 | |
|---|---|
| 備考 | 飲食不可 エレベーター利用時間:平日7:00~23:00、土日10:00~23:00 |
| 建物 | |
|---|---|
| 建物構造 | 鉄骨鉄筋コンクリート造 |
| 建物階建て |
地上10階 地下1階 |
| 施工年月 | 1992(平成4)年 06月 |
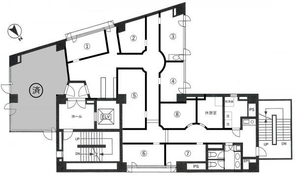
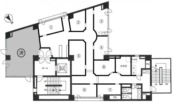
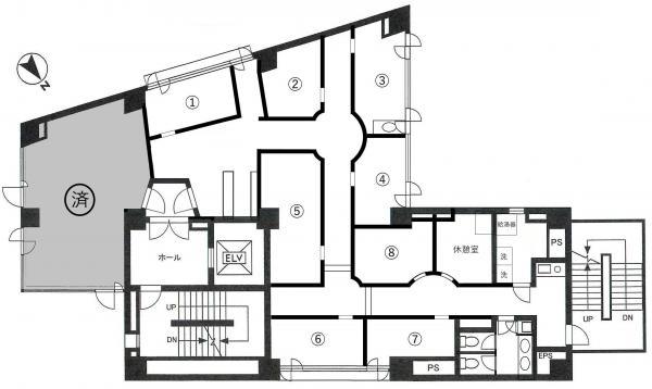
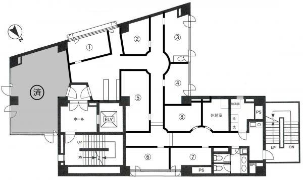
| 募集物件の階数 | 地上 8階 |
| 契約面積 | 148.77m2(45.00坪) |
| 用途地域 | 商業地域 |
| 設備 | |
|---|---|
| 水道 | 公営 |
| 下水道 | 公共下水 |
| エレベータ | 有 |
| エアコン | 有り/個別 |
| トイレ | 有/専用 |
| 給湯室 | 有/専用 |
| 照明設備 | 有 |
| 駐車場 | |
|---|---|
| 状 況 | 空無 |
| 取引情報 | |
|---|---|
| 取引態様 | 媒介 |
| 客付 | 可 |
この物件をチェックした人はこんな物件も見ています
- 八王子駅徒歩4分、5階居酒屋居抜き。

東京都八王子市東町-12-6
254.15m2(76.88坪)
845,680円(税込)
- 2駅利用可の2階店舗事務所。元は歯科医院ですが、現況スケルトン。外階段で直接2階に上がれます。

東京都八王子市横山町-24-7
54m2(16.34坪)
198,000円(税込)
- 建物内にドラッグストア・内科が入っており、クリニック・動物病院・美容室歓迎!!事務所・倉庫・スポーツジム等もご相談可能です。

東京都多摩市落合6-15-4
74.13m2(22.42坪)
154,000円(税込)
- 2025年6月完成の4階建マンションの1階路面店舗事務所。医療関係・美容関係・学習塾・事務所等に最適です! ☆5月末日までのご成約に限り、フリーレント3ヶ月☆

東京都八王子市明神町3-23-5
68.44m2(20.70坪)
330,000円(税込)
- 2025年6月完成の4階建新築マンションの1階路面店舗事務所。医療関係・美容関係・学習塾・事務所等に最適です! ☆5月末日までのご成約に限り、フリーレント3ヶ月☆

東京都八王子市明神町3-23-5
60.93m2(18.43坪)
302,500円(税込)
今日チェックした物件
お急ぎの方はお電話からお気軽にどうぞ!
042-644-6680 営業時間 / 9:30〜18:30 定休日 / 日曜・水曜・祝日


042-644-6680



















042-644-6680