情報更新日:2025年10月09日/広告有効期限:なし
表示閲覧回数(過去30日間):104
お急ぎの方はお電話からお気軽にどうぞ!
042-644-6680 営業時間 / 9:30〜18:30 定休日 / 日曜・水曜・祝日
>物件詳細情報
| 基本情報 | |
|---|---|
| 物件番号 | 10007807543 | 
| 店舗形態 | 事務所, 店舗, 居抜店舗 | 
| オススメ業種 | 医療関係, 塾・学校・教育関係, 美容関係, 事務所 | 
| 物件名 | 子安町テナントビル | 
| 物件の状態 | 空き | 
| 引越し時期 | 即 | 
| 契約形態と期間 | 
        普通契約期間:3年間更新料:1ヶ月 | 
    
| 所在地・交通 | |
|---|---|
| 所在地 | 東京都八王子市子安町4-5-14 | 
| 交 通1 | JR中央線八王子駅 徒歩5分 | 
| 交 通2 | JR横浜線八王子駅 徒歩5分 | 
| 賃料 | |
|---|---|
| 賃 料 | 170,000円(税込) | 
| 保証金 | 3ヶ月 | 
| その他 | |
|---|---|
| 備考 | 3階も募集中、3フロア一括貸も相談可! | 
| 建物 | |
|---|---|
| 建物構造 | 鉄骨造 | 
| 建物階建て | 
      地上5階 | 
| 施工年月 | 1996(平成8)年 06月 | 
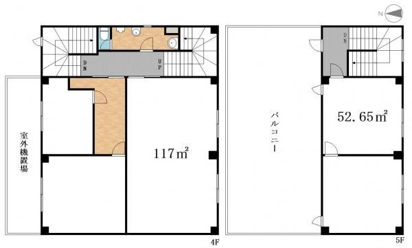
| 募集物件の階数 | 地上 4-5階 | 
| 契約面積 | 169.65m2(51.32坪) | 
| 用途地域 | 近商地域 | 
| 設備 | |
|---|---|
| 水道 | 公営 | 
| 下水道 | 公共下水 | 
| ガス | 都市ガス | 
| エアコン | 有り/個別 | 
| トイレ | 有/専用 | 
| 照明設備 | 有 | 
| 駐車場 | |
|---|---|
| 状 況 | 無し | 
| 取引情報 | |
|---|---|
| 取引態様 | 代理 | 
| 客付 | 可 | 
この物件をチェックした人はこんな物件も見ています
- 八王子駅北口より徒歩1分、希少な駅近居酒屋居抜き物件。1階からの専用階段あります。諸条件ご相談ください。
 
東京都八王子市旭町-6-4
 
          103.80m2(31.40坪)
          407,000円(税込)        
- 八王子駅徒歩4分、5階居酒屋居抜き。
 
東京都八王子市東町-12-6
 
          254.15m2(76.88坪)
          845,680円(税込)        
- 建物内にドラッグストア、内科が入っており、お客様駐車場もあります。業種は医療関係・学習塾・美容院限定での募集となります。
 
東京都多摩市落合6-15-4
 
          103.15m2(31.20坪)
          231,000円(税込)        
- 2026年3月完成予定の新築物件。みさき通り沿い、駅近で10階建マンションの2階1区画。業種ご相談いただけますが、上階が住居のため、煙や臭いの出る重飲食は不可。※1階ワンフロア・201号室も募集中!
 
東京都八王子市三崎町-10-1(地番)
 
          58.68m2(17.75坪)
          220,000円(税込)        
- 2026年3月完成予定の新築物件。みさき通り沿い、駅近で10階建マンションの2階1区画。業種ご相談いただけますが、上階が住居のため、煙や臭いの出る重飲食は不可。※1階ワンフロア・202号室も募集中!
 
東京都八王子市三崎町-10-1(地番)
 
          36.55m2(11.06坪)
          143,000円(税込)        
今日チェックした物件
お急ぎの方はお電話からお気軽にどうぞ!
042-644-6680 営業時間 / 9:30〜18:30 定休日 / 日曜・水曜・祝日


 042-644-6680












       
       
       
 
      

          




 042-644-6680