情報更新日:2026年01月23日/広告有効期限:なし
表示閲覧回数(過去30日間):89
お急ぎの方はお電話からお気軽にどうぞ!
042-644-6680 営業時間 / 9:30〜18:30 定休日 / 日曜・水曜・祝日
>物件詳細情報
| 基本情報 | |
|---|---|
| 物件番号 | 10007807451 |
| 店舗形態 | 事務所, 店舗 |
| オススメ業種 | 事務所, 美容関係, 物販関係, 塾・学校・教育関係 |
| 物件名 | ニュー紅洋ビル |
| 物件の状態 | 空き |
| 引越し時期 | 相談 |
| 契約形態と期間 |
普通契約期間:3年間更新料:1ヶ月 |
| 所在地・交通 | |
|---|---|
| 所在地 | 東京都八王子市中町-4-10 |
| 交 通1 | JR中央線八王子駅 徒歩5分 |
| 交 通2 | 京王線京王八王子駅 徒歩7分 |
| 賃料 | |
|---|---|
| 賃 料 | 349,800円(税込) |
| 保証金 | 1,908,000円(税込) |
| 保証金償却 | 20% |
| 礼 金 | 1ヶ月 |
| その他 | |
|---|---|
| 備考 | 飲食は軽飲食のみ可 |
| 建物 | |
|---|---|
| 建物構造 | 鉄骨造 |
| 建物階建て |
地上7階 |
| 施工年月 | 1984(昭和59)年 03月 |
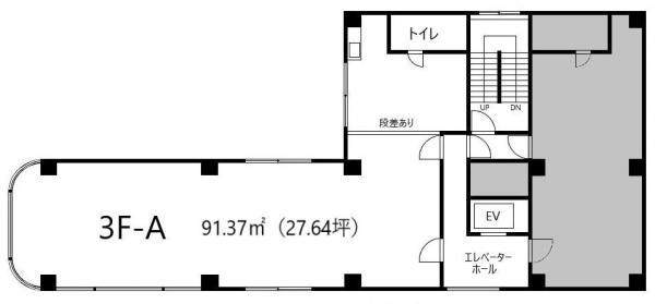
| 募集物件の階数 | 地上 3階 A号室 |
| 契約面積 | 91.37m2(27.64坪) |
| 用途地域 | 商業地域 |
| 設備 | |
|---|---|
| 水道 | 公営 |
| 下水道 | 公共下水 |
| ガス | 都市ガス |
| エレベータ | 有 |
| エアコン | 有り/個別 |
| トイレ | 有/専用 |
| キッチン | 有/専用 |
| 照明設備 | 有 |
| 駐車場 | |
|---|---|
| 状 況 | 無し |
| 取引情報 | |
|---|---|
| 取引態様 | 媒介 |
| 客付 | 可 |
この物件をチェックした人はこんな物件も見ています
- 2駅利用可の2階店舗事務所。元は歯科医院ですが、現況スケルトン。外階段で直接2階に上がれます。

東京都八王子市横山町-24-7
54m2(16.34坪)
198,000円(税込)
- 建物内にドラッグストア、内科が入っており、お客様駐車場もあります。業種は医療関係・学習塾・美容院限定での募集となります。

東京都多摩市落合6-15-4
103.15m2(31.20坪)
231,000円(税込)
- 八王子駅徒歩4分、5階居酒屋居抜き。

東京都八王子市東町-12-6
254.15m2(76.88坪)
845,680円(税込)
- 八王子駅4分、人通りの絶えない駅前銀座通り沿いで飲食店に最適!

東京都八王子市東町-12-6
263.83m2(79.81坪)
965,701円(税込)
- 西八王子駅徒歩2分、大通り沿いの新築。視認性抜群で集客力◎ ローソンの向かい・周辺に商業施設あり、業種ご相談可能。スケルトン渡しで自由なレイアウトが可能。事務所・店舗に最適です。

東京都八王子市台町4-44-5
53.44m2(16.17坪)
209,000円(税込)
今日チェックした物件
お急ぎの方はお電話からお気軽にどうぞ!
042-644-6680 営業時間 / 9:30〜18:30 定休日 / 日曜・水曜・祝日


042-644-6680



















042-644-6680