情報更新日:2026年05月08日/広告有効期限:なし
表示閲覧回数(過去30日間):9
お急ぎの方はお電話からお気軽にどうぞ!
042-644-6680 営業時間 / 9:30〜18:30 定休日 / 日曜・水曜・祝日
>物件詳細情報
| 基本情報 | |
|---|---|
| 物件番号 | 10007807373 |
| 店舗形態 | 事務所 |
| オススメ業種 | 事務所 |
| 物件名 | ザイマックス八王子ビル |
| 物件の状態 | 入居中 |
| 引越し時期 | 2026(令和8)年08月下旬 |
| 契約形態と期間 |
普通契約期間:2年間 |
| 所在地・交通 | |
|---|---|
| 所在地 | 東京都八王子市横山町-25-6 |
| 交 通1 | JR中央線八王子駅 徒歩5分 |
| 交 通2 | 京王線京王八王子駅 徒歩5分 |
| 賃料 | |
|---|---|
| 賃 料 | 賃料未定 |
| 敷 金 |
12ヶ月 |
| その他月額費用 1 | 袖看板使用料 16,500円(税込) |
| その他 | |
|---|---|
| 備考 | 駐車場あり(別途契約) |
| 建物 | |
|---|---|
| 建物構造 | 鉄骨鉄筋コンクリート造 |
| 建物階建て |
地上8階 地下1階 |
| 施工年月 | 1993(平成5)年 01月 |
| 募集物件の階数 | 最上階 8階 |
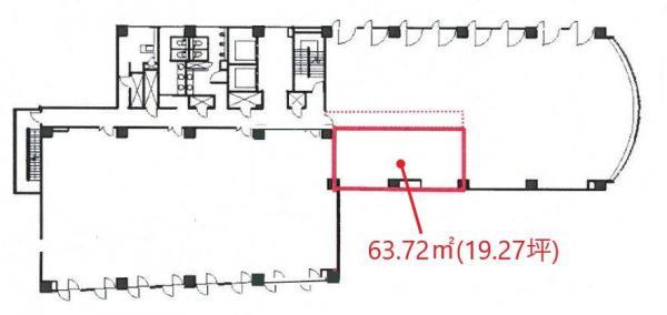
| 契約面積 | 63.72m2(19.28坪) |
| 用途地域 | 商業地域 |
| 設備 | |
|---|---|
| エレベータ | 有/2基 |
| エアコン | 有り/個別 |
| トイレ | 有/共用 |
| 給湯室 | 有/共用 |
| 利用時間 | 24時間 |
| 駐車場 | |
|---|---|
| 状 況 | 空有 |
| 駐車料金 | 30,000円(税込) |
| 敷 金 | 3ヶ月 |
| 取引情報 | |
|---|---|
| 取引態様 | 媒介 |
| 客付 | 不可 |
この物件をチェックした人はこんな物件も見ています
- 2駅利用可の2階店舗事務所。元は歯科医院ですが、現況スケルトン。外階段で直接2階に上がれます。

東京都八王子市横山町-24-7
54m2(16.34坪)
198,000円(税込)
- 八王子駅4分、人通りの絶えない駅前銀座通り沿いで飲食店に最適!

東京都八王子市東町-12-6
263.83m2(79.81坪)
965,701円(税込)
- 八王子駅徒歩4分、5階居酒屋居抜き。

東京都八王子市東町-12-6
254.15m2(76.88坪)
845,680円(税込)
- 建物内にドラッグストア・内科が入っており、クリニック・動物病院・美容室歓迎!!事務所・倉庫・スポーツジム等もご相談可能です。

東京都多摩市落合6-15-4
74.13m2(22.42坪)
154,000円(税込)
- JR八王子4分、京王八王子1分の駅近物件! 便利な立地のビル8階エステサロン居抜き物件。室内は8つのブースに仕切られています。美容系の他、医療系の業態も相談可!

東京都八王子市明神町4-7-3
148.77m2(45.00坪)
495,000円(税込)
今日チェックした物件
お急ぎの方はお電話からお気軽にどうぞ!
042-644-6680 営業時間 / 9:30〜18:30 定休日 / 日曜・水曜・祝日


042-644-6680



















042-644-6680